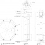
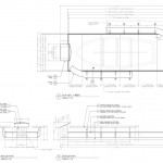
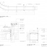
This project was a permanent installation consisting of custom walls, risers, large aluminum and glass display cases, and graphic panel reader rails.
The Harbor History Museum is a hands-on interactive cultural and community center that allows visitors to experience the history of the Gig Harbor Peninsula. It’s goal is to educate and entertain guests through a wide variety of exhibits and public programs.



















