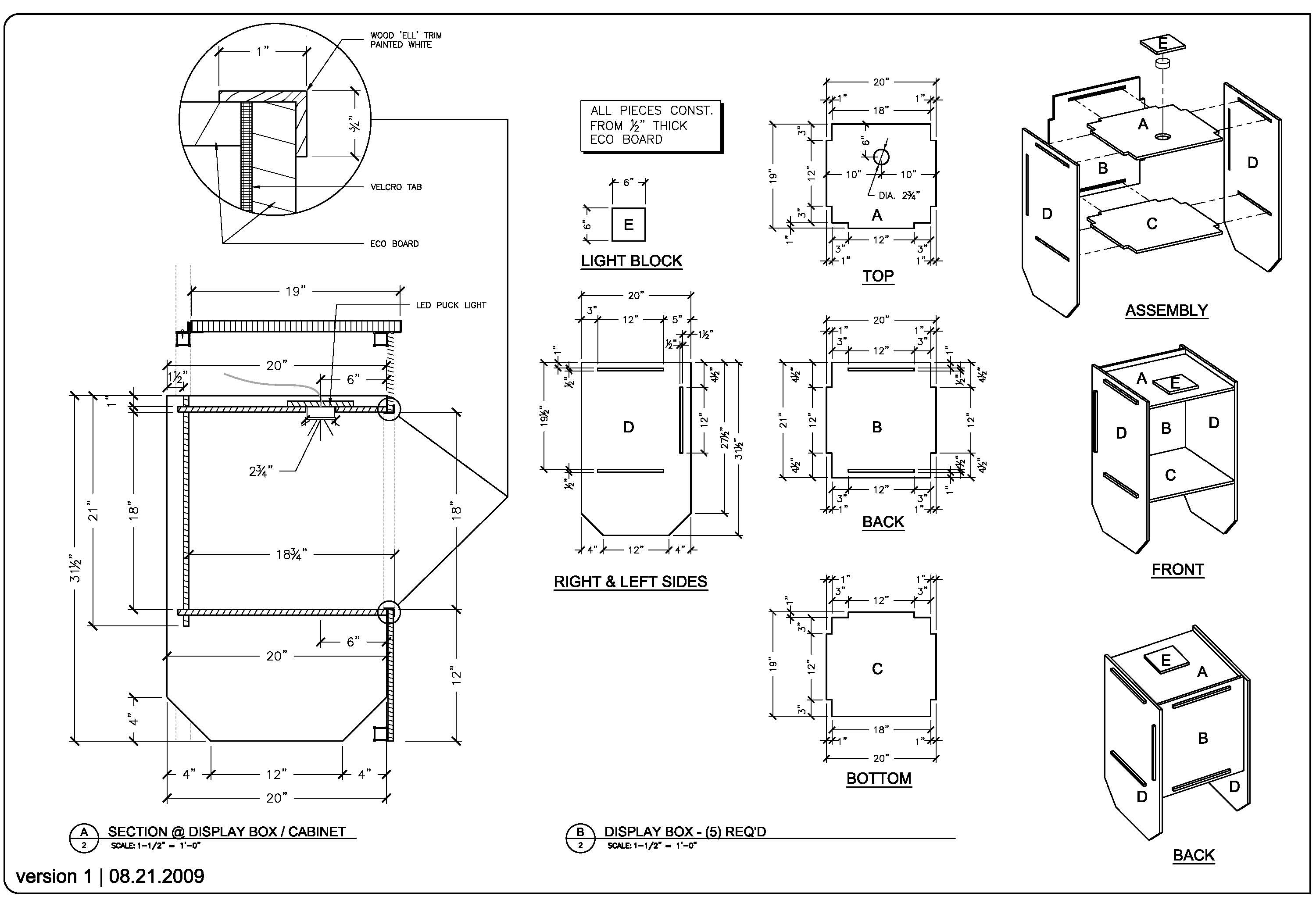
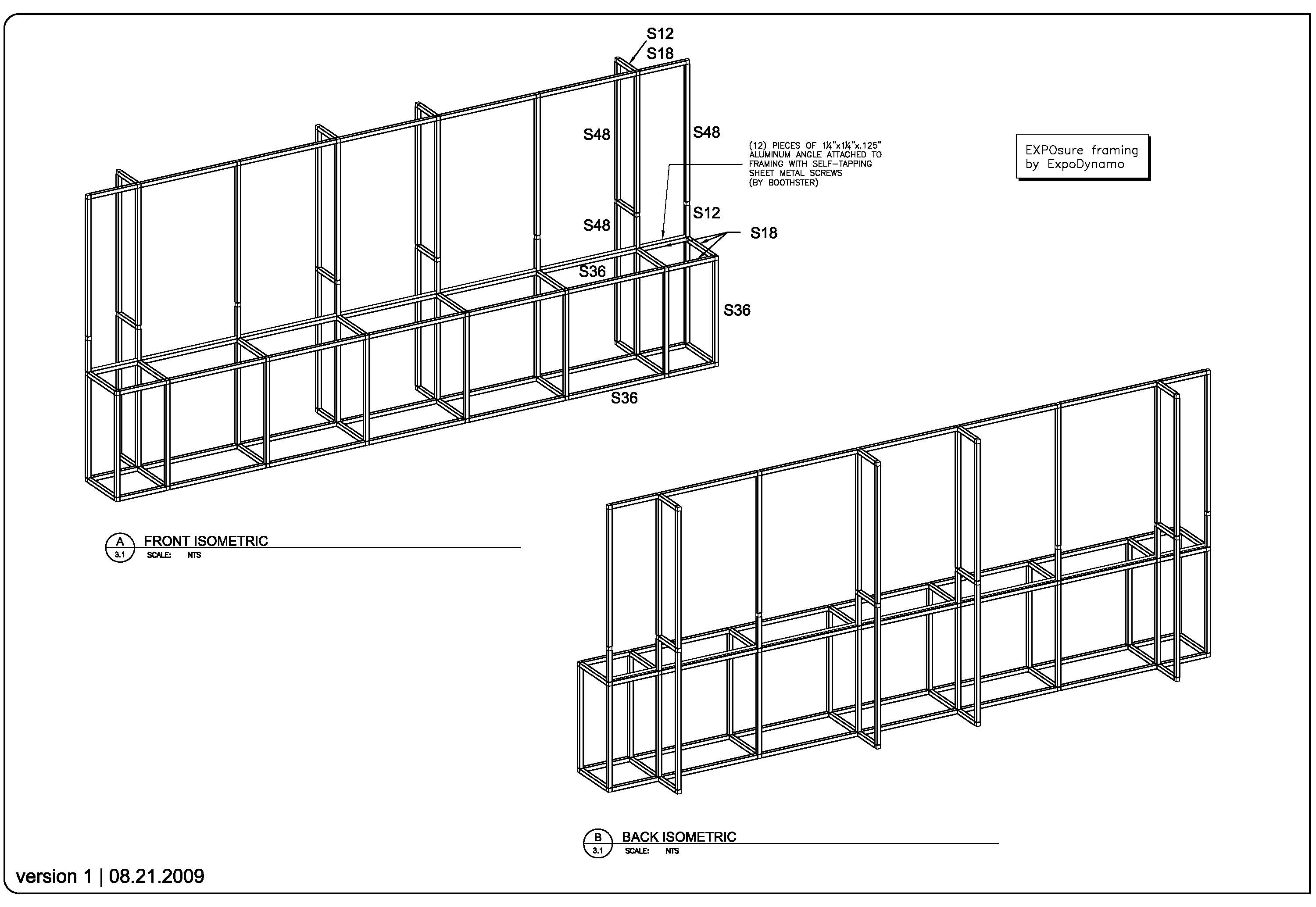
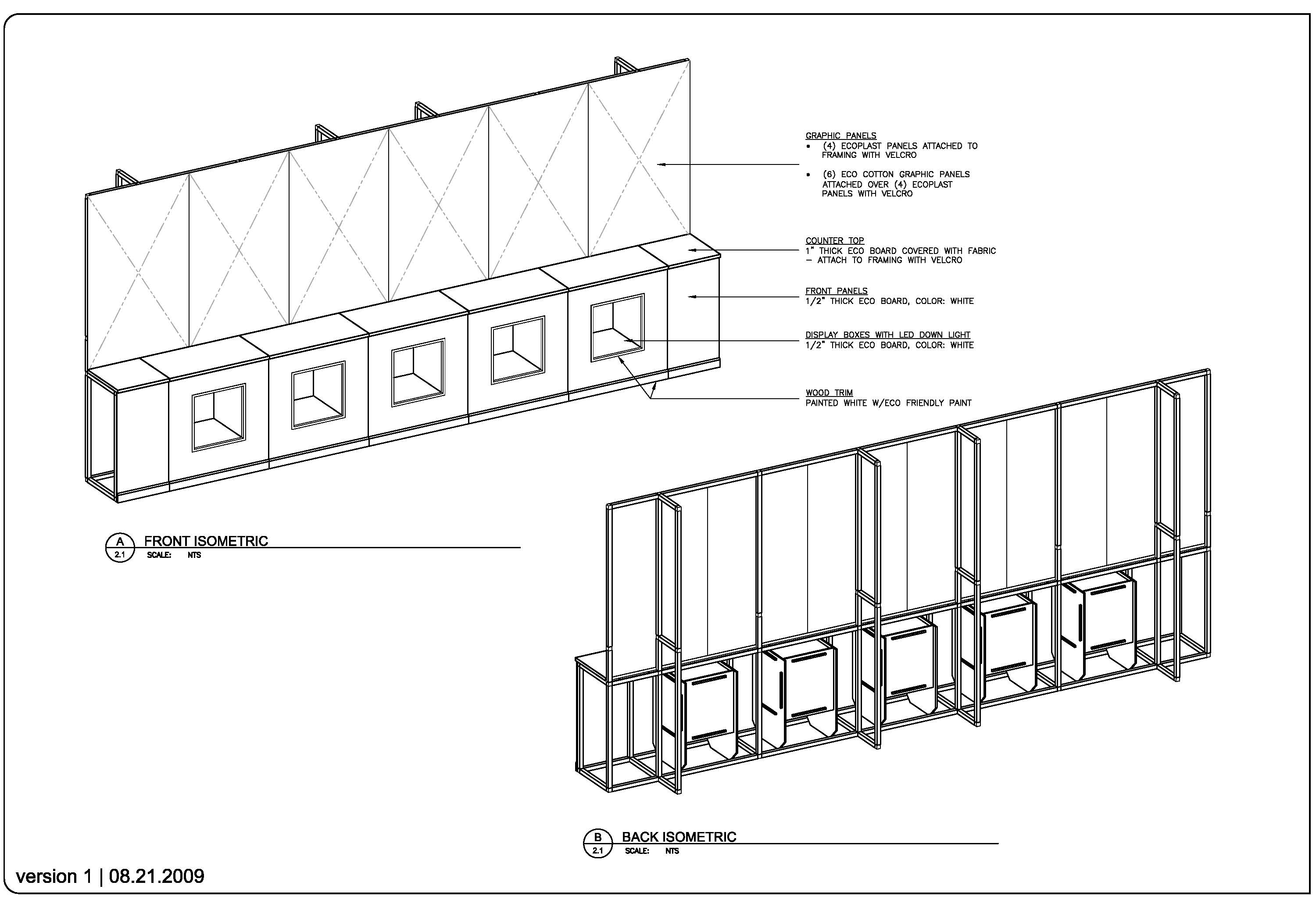
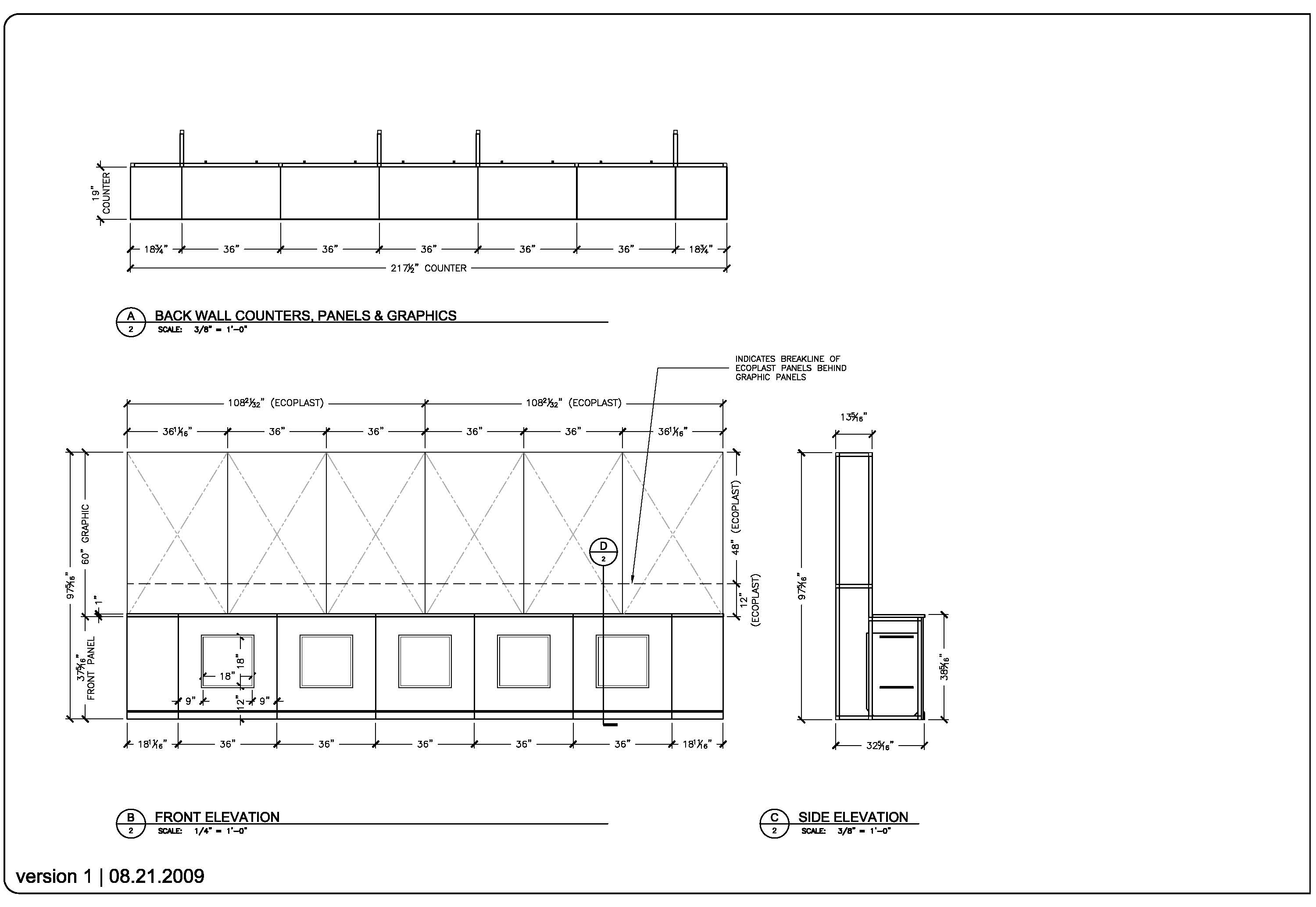
This booth created a fun, colorful backdrop with a back counter, lighted cubbies, and a whimsical apple tree for product display.
Apple Park was founded in San Francisco with a vision to create environmentally responsible and luxurious products for babies and children. Apple Park’s Picnic Pals were inspired by classic children’s toys, reinvented with the finest eco-friendly materials available.
















