FIVE22 drafting & exhibit detailing
  • Email
  • Facebook
  • Linkedin
  • Twitter
  • HOME
  • SERVICES
  • PORTFOLIO
  • BLOG
  • ABOUT US
  • CONTACT
Search

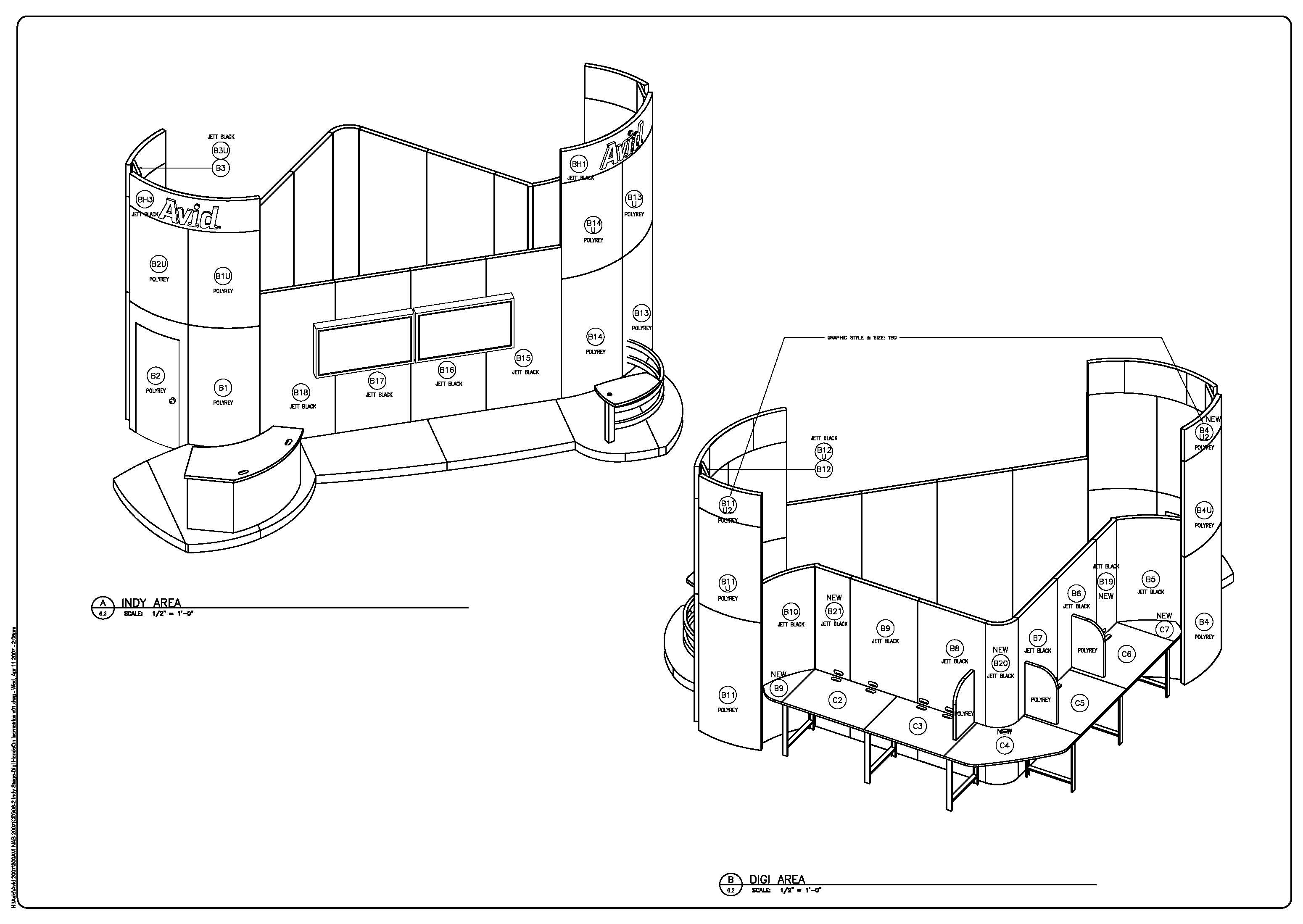
AVID

Posted by DB - January 12, 2007 - Exhibits, portfolio, Space Planning, Trade Shows
0
AVID

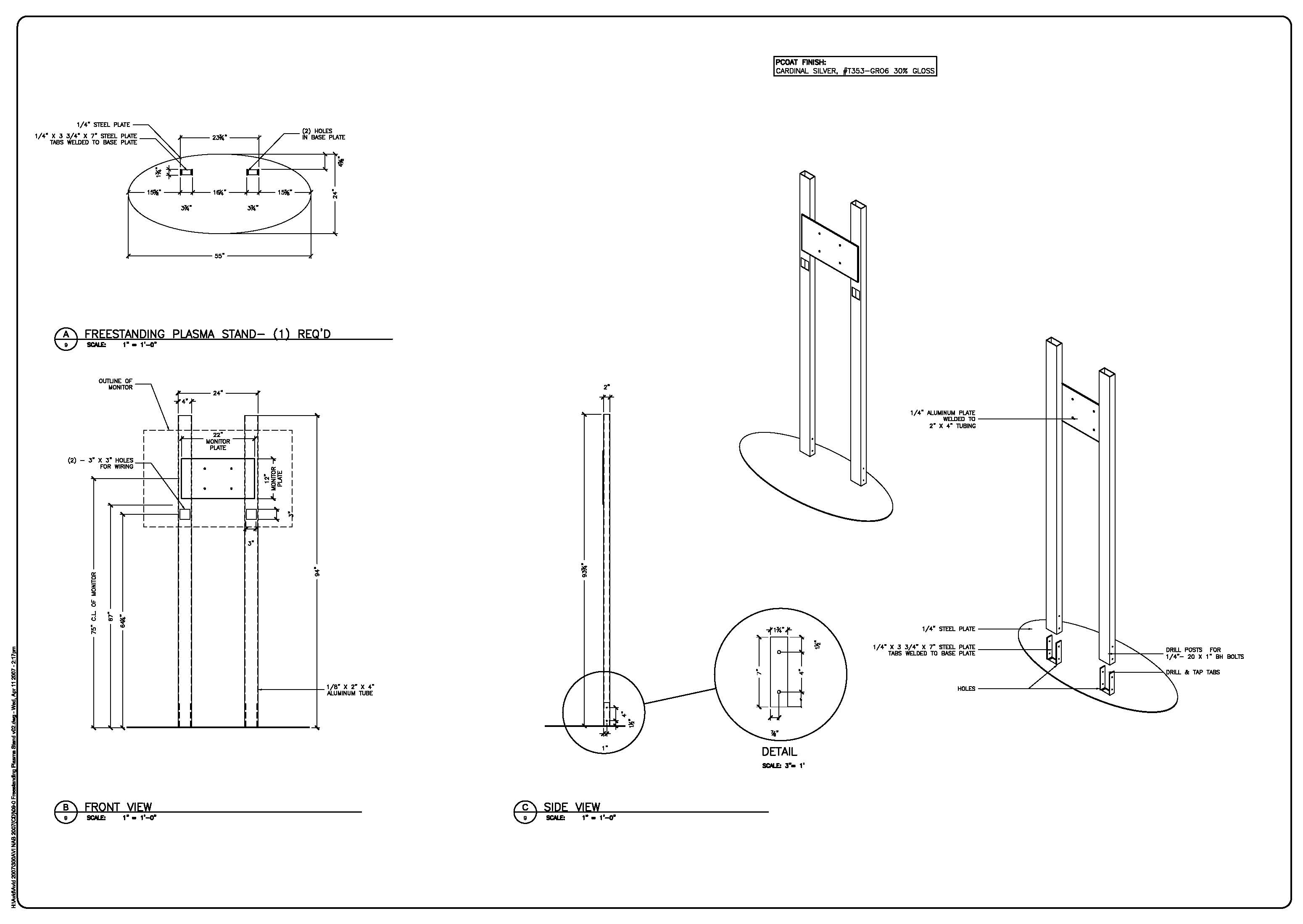
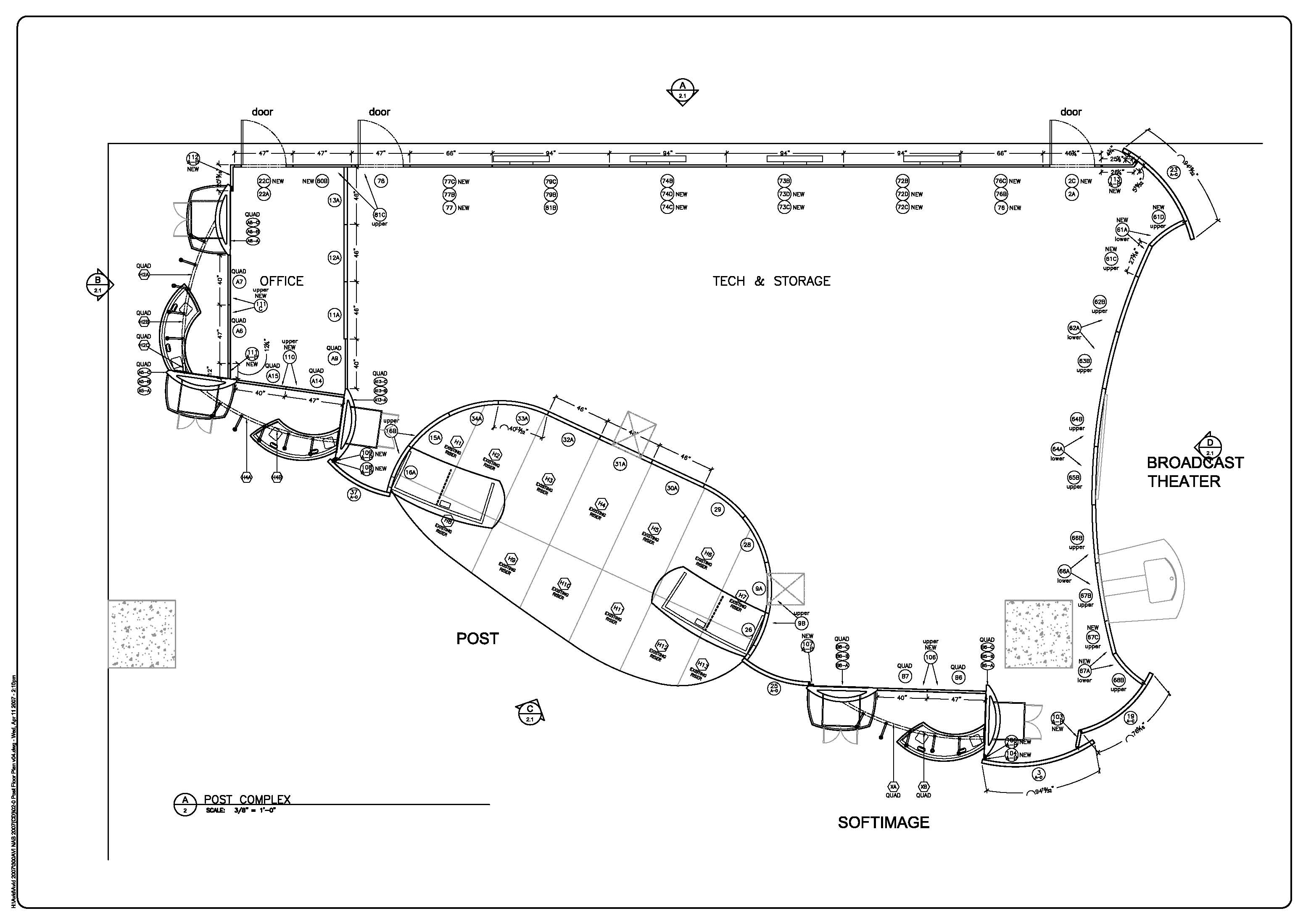
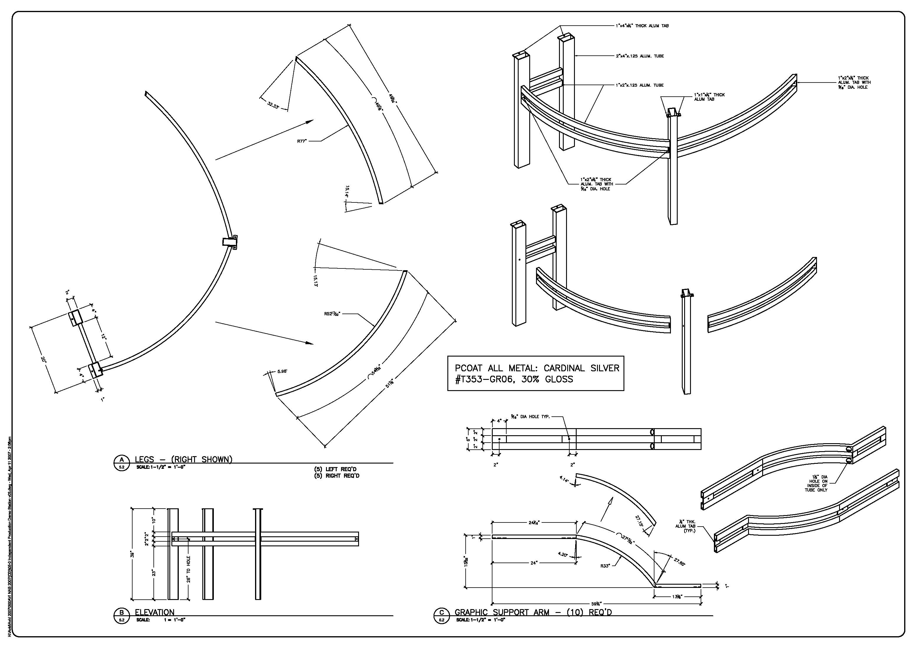
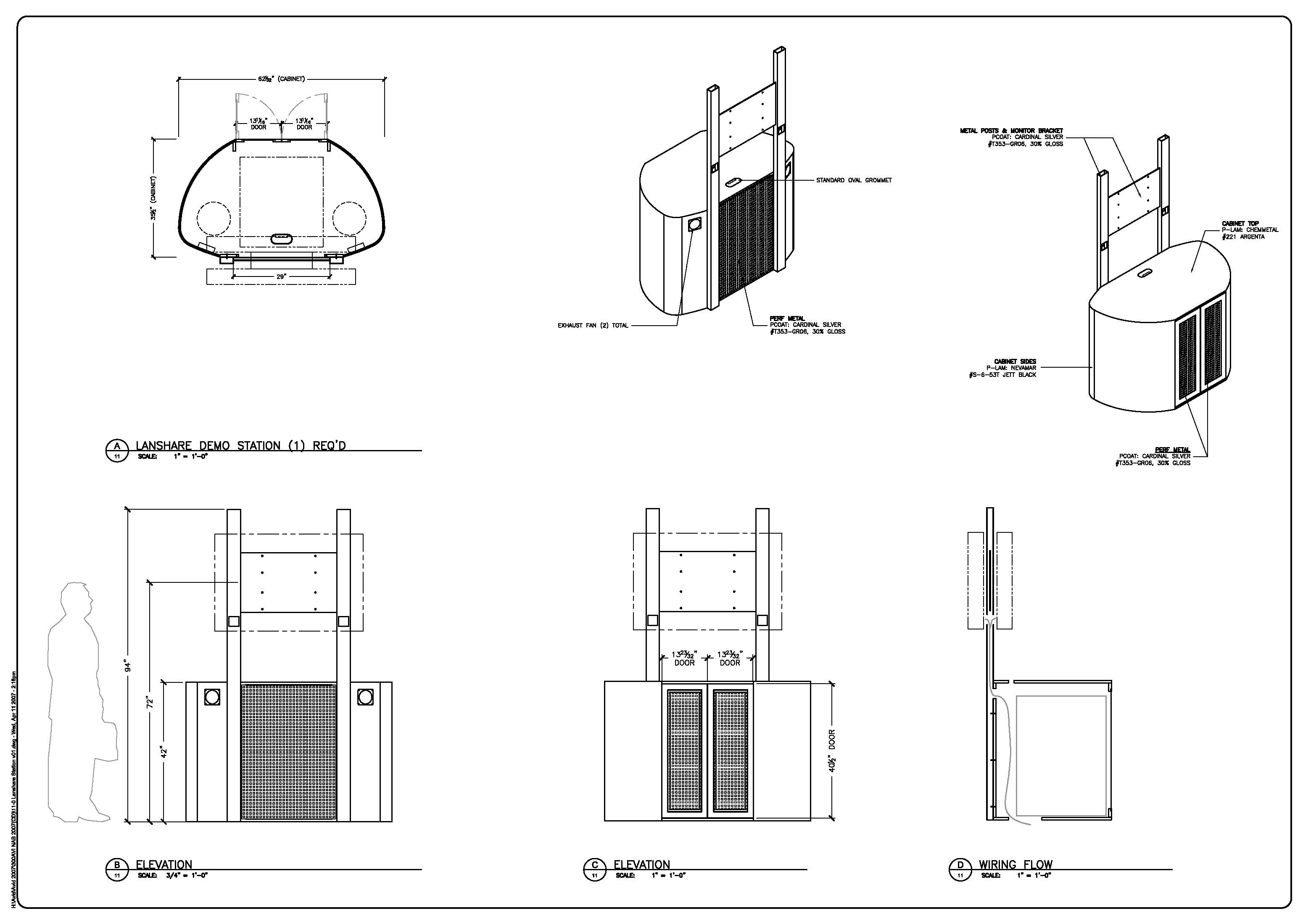
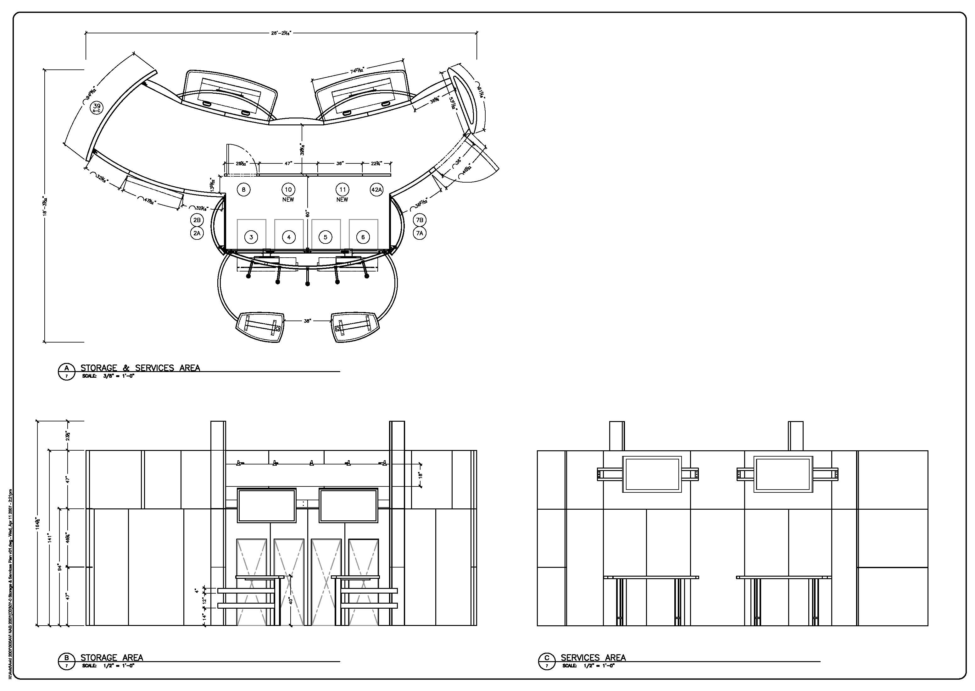
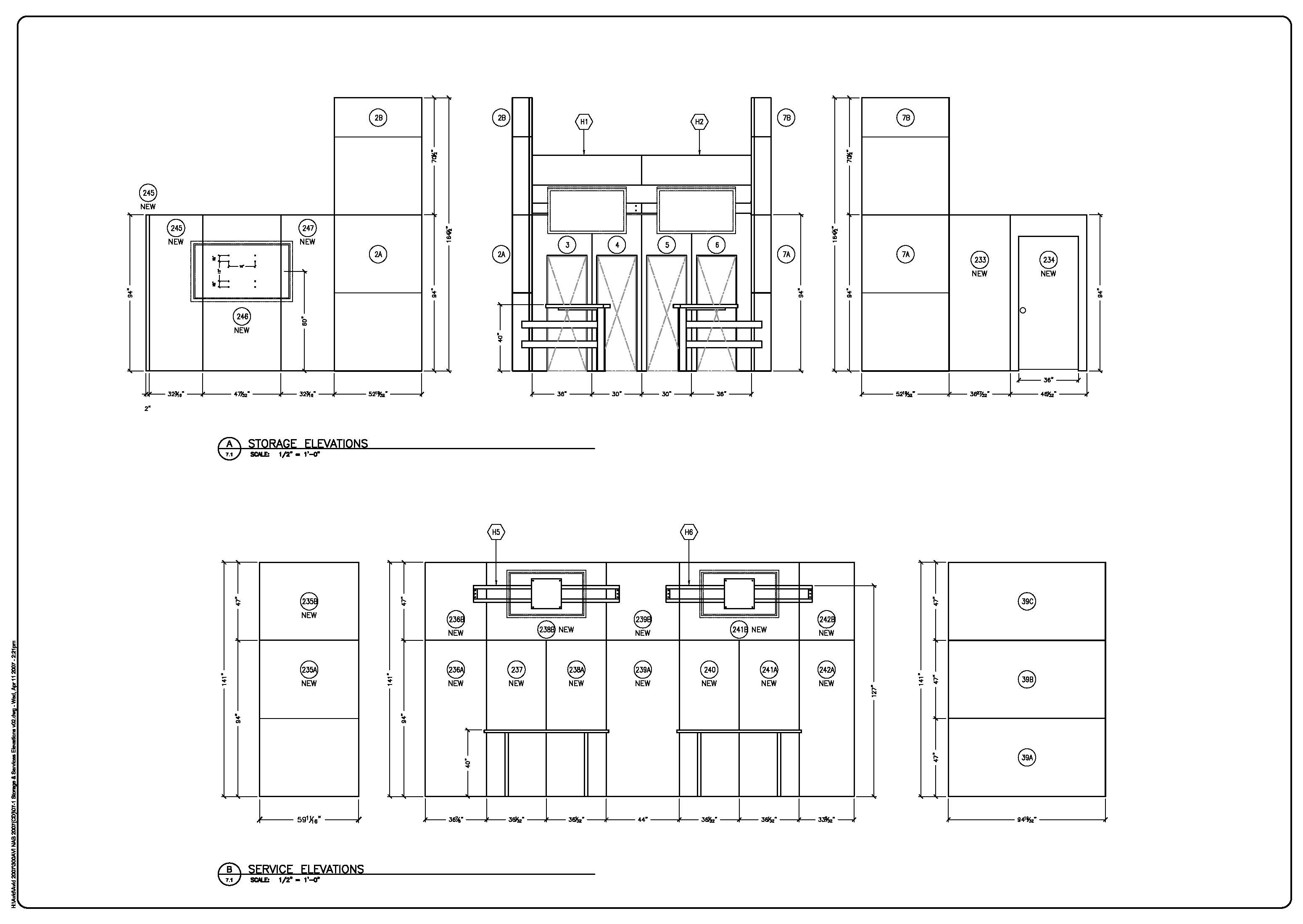
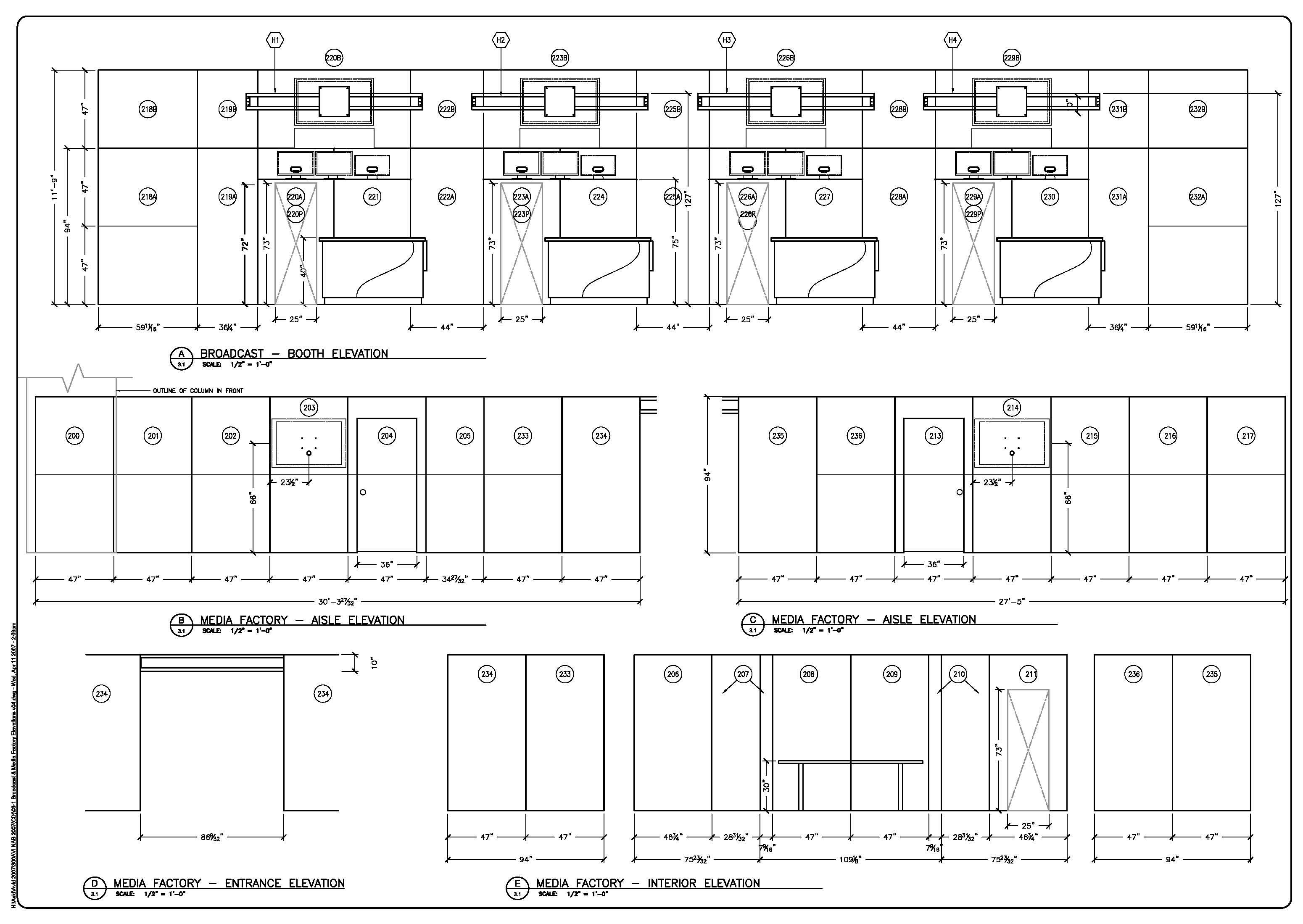
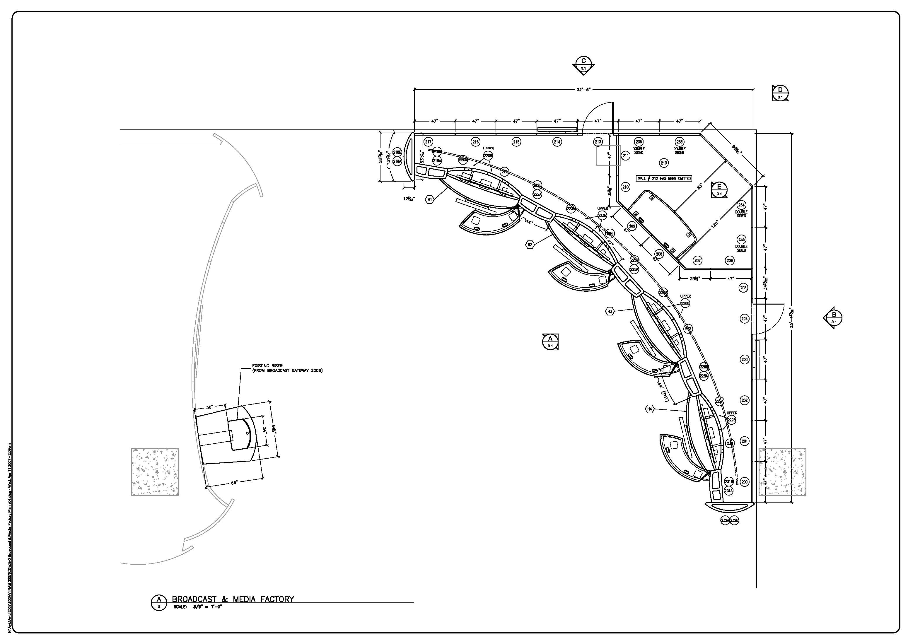
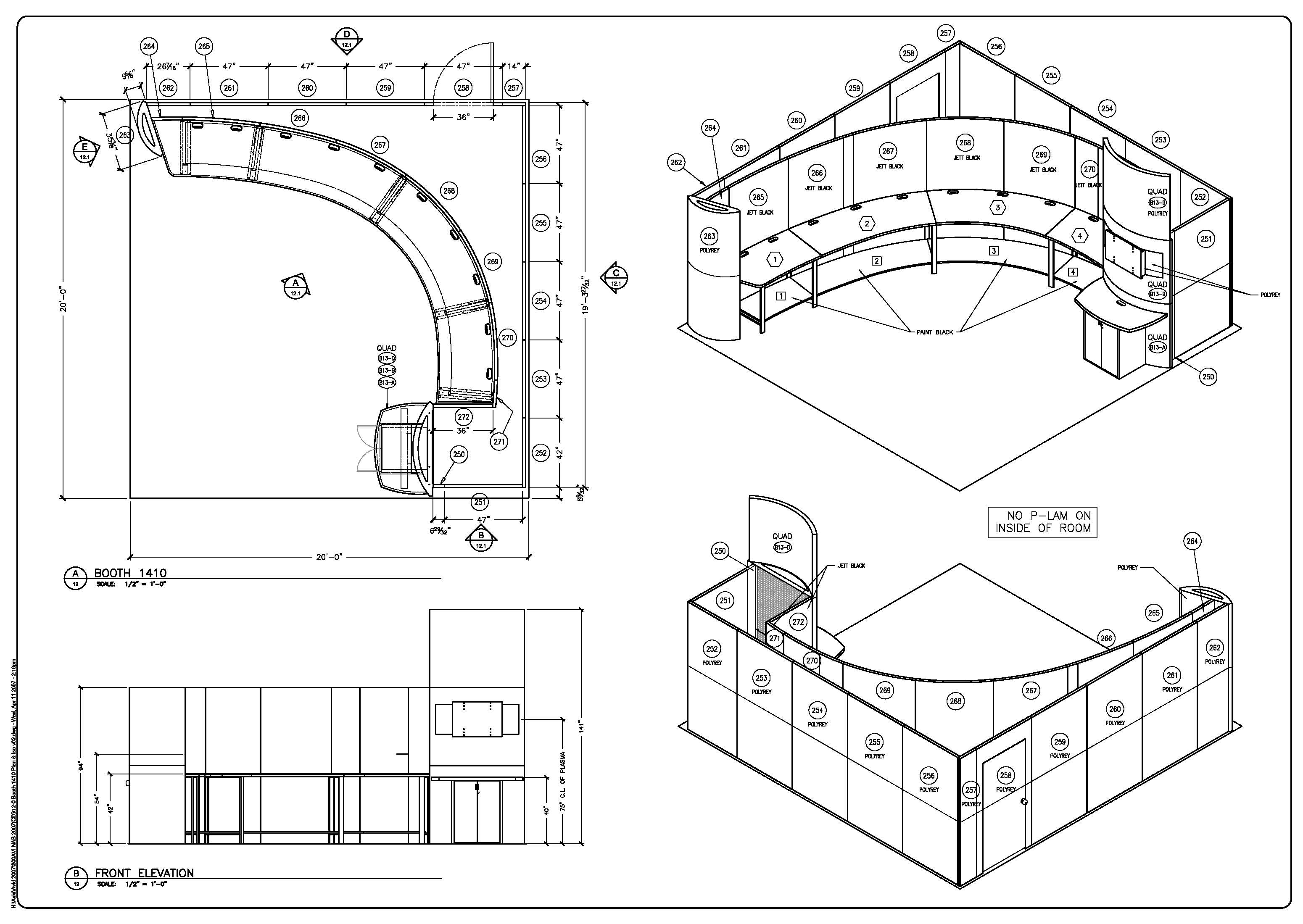
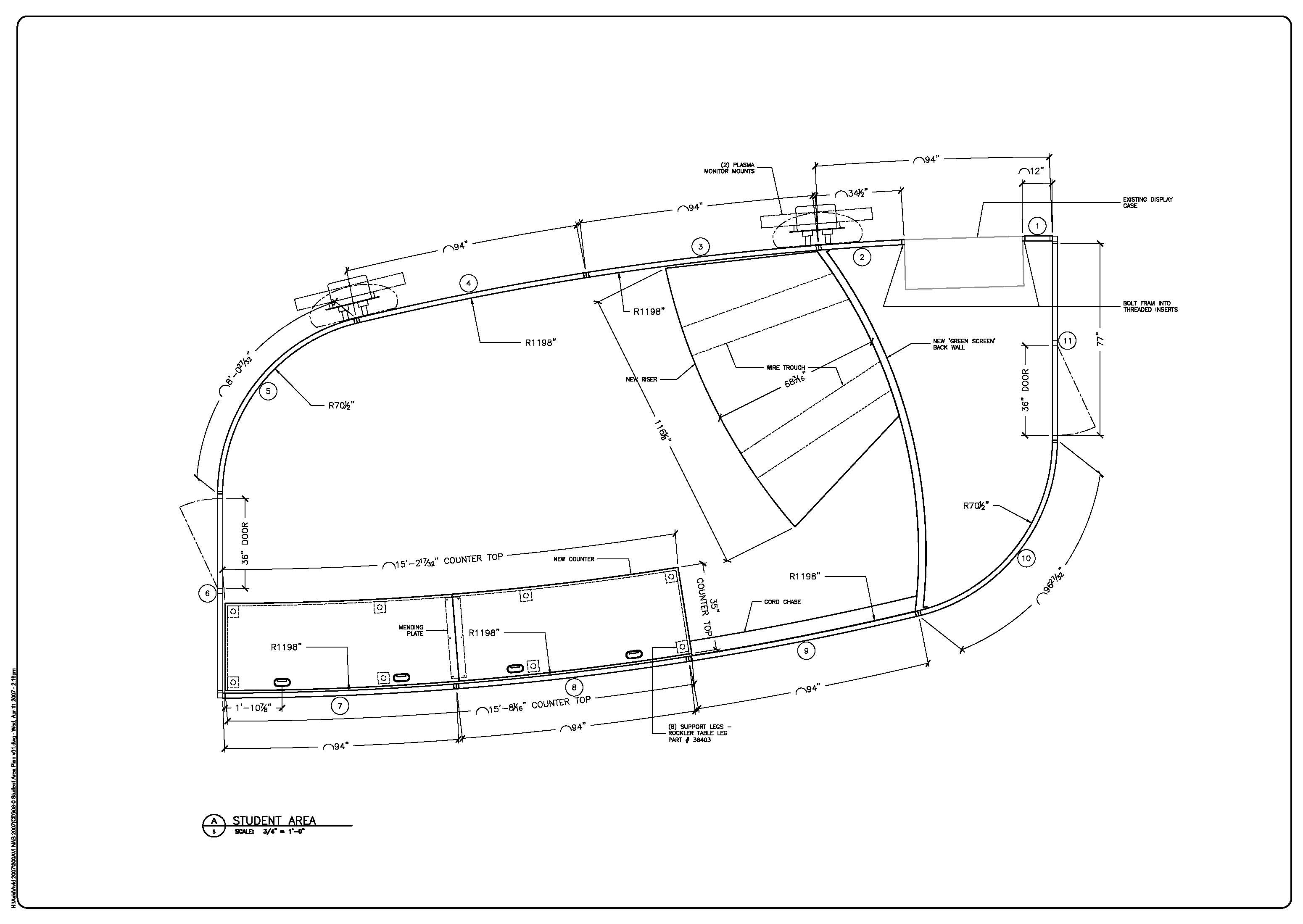
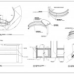
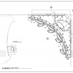
This was a huge booth…120’x120′ booth with primary and secondary theaters,  multiple presentation areas, and many individual workstations. 












Projects

  • Assembly
  • Corporate Environment
  • Exhibits
  • Interpretive
  • Kiosks
  • Modular
  • Museums
  • Paper-to-CAD
  • P.O.P. Displays
  • Portables
  • Retail
  • Set Ups
  • Trade Shows
  • Visitor Centers
  • Wayfinding
  • Zoos

Recent Posts

  • Lex Casino Bewertung und warum es deutsche Lizenzierung anstrebt
  • 7XM Est-Il Sécurisé, Impénétrable, Fiable Et Solide _ République française Play Instantly
  • Online · BR Try Your Luck
  • What Equal Bwin Casino And What Get Along Information Technology Put Up • New Zealand region Start Winning
  • Trust Choice And Defrayal Security · APAC region Win Big Today

Latest Tweets

  • No public Tweets found

Five22 Family

  • FORTRESS WEB HOSTING Our sister company offers amazing products and incredible pricing all backed by 24/7 customer support specialists.

Partners

  • ABLE SAGE Signage & Graphic Design
  • BOOTHSTER Eco-Friendly trade show booths and displays
  • GREG GARRETT DESIGN A design veteran with 20+ years of experience designing both trade show and interpretive spaces.
  • LORI ADAIR DESIGN Premier graphic design

David Beaudry

  • 503.806.6430
  • five22drafting@gmail.com
  • Contact Us
    • Facebook
    • Twitter
    • Linkedin
    • Instagram
    • Tumblr
    • Youtube

Admin

Log In
Copyright (c) 2002-2017 | FIVE22 DRAFTING LLC | All Rights Reserved
  • HOME
  • SERVICES
  • BLOG
  • PORTFOLIO
  • ABOUT US
  • CONTACT